您所在的位置:艺术 > 中国古建筑 -- 四合院欣赏
四合院布局(以最常见的三进四合院为例)
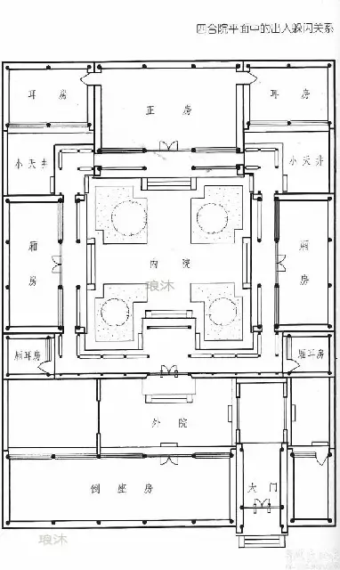
整体布局依据风水
北京四合院的大门,从位置上说,指的是进入四合院的主要入口,临街的门,北京人习惯叫它“街门”。 门是旧社会主人地位的一个表征。分为王府大门、广亮大门、金柱大门、如意门、蛮子门等。
王府大门
王府大门是屋宇式大门中的最高等级。通常有五间三启门和三间一启门两等。这种大门座落在王宅院的中线上,宏伟气派。
广亮大门
仅次于王府大门,它是屋宇式大门的一种主要形式,这种大门一般位于宅院的东南角,占据一间房的位置。
金柱大门
这是一种门扉安装在金柱(俗称老檐柱)间的大门,称为“金柱大门”。
蛮子门
门扉安装在外檐柱间,门扇槛握的形式仍采取广亮大门的形式,北京人把这种门称为“蛮子门”。
如意门
如意门里的住户一般是在政治上地位不高,但却非常殷实富裕的士民阶层。
墙垣式门
墙垣式门墙垣门 也叫随墙门,其特点是无门洞,顺墙开,只占半间或大半间宽度,院门较窄。
影壁
影壁也称照壁,设在大门之内的迎门处,是大门内外的重要装饰壁面,壁身都为正方形,四周用砖雕装饰,中间的方块为书法或者绘画。主要作用在于遮挡大门内外杂乱呆板的墙面和景物,美化大门的出入口,人们在进出宅门时,迎面看到的首先是迭砌考究、雕饰精美的墙面和镶刻在上面的吉辞颂语。
倒座房
紧邻四合院大门,坐南朝北跟正房相对的房屋。通常为外客厅、账房、门房、客房、仆人居住等用途。
垂花门
垂花门是中国古代建筑院落内部的门,因其檐柱不落地,垂吊在屋檐下,称为垂柱,其下有一垂珠,通常彩绘为花瓣的形式,故被称为垂花门。它是内宅与外宅(前院)的分界线和唯一通道。旧时人们常说的“大门不出,二门不迈”,“二门”即指此垂花门。
抄手游廊
连接和包抄垂花门、厢房和正房,雨雪天可方便行走。
有的正房和厢房带廊子。五间的是三间正房两间耳房,耳房是单开门,所谓“三正两耳”。七间的,在正房和耳房之间,有两个与正房相通的(在山墙开门)套间儿。东西厢房各三间,厢房和耳房之间,有个过道儿,可以通后院。
实时询价 作品定制
高级顾问一对一专属服务
获取一手行情信息及作品报价
特别提示:本站所提供文案内容及观点、案例仅供参考,不作为您投资理财交易的依据(收藏、投资有风险,请谨慎入市)。内容中所引用的各类信息来自市场公开资料、网络、产品实物本身等,不当之处请联系邮箱:toutiao@sctx.com,我们会在24小时内进行处理,谢谢合作。

6月28日,一场见证中国景泰蓝非遗技艺巅峰突破的盛会在京举行。中国工艺美术大师、景泰蓝一代宗师刘永森携手“当代国礼造办”北京工美联合打造景泰蓝史上首款青花粉彩转心瓶《运转乾坤·龙凤尊》隆重亮相。
4月7日,敦煌美术院主办、收藏天下承办的“千年华彩敦煌印象”蔡树本敦煌壁画展正在火热展览中,著名画家、敦煌文化守护者蔡树本先生莅临收藏天下,双方就深入推动敦煌文化的发展,进一步交流与合作。敦煌莫高窟被
2023年9月6日上午,第六届丝绸之路(敦煌)国际文化博览会(以下简称“敦煌文博会”)在敦煌国际会展中心盛大开幕。2013年9月,国家提出了共建“一带一路”的倡议,秉持和而不同,倡导美美与共,坚持共商
张婧婧|在传承与交流创新中发扬景德镇陶瓷艺术
收藏天下受邀助力第三届中国工艺美术博览会
第19届杭州亚运会以“中国新时代·杭州新亚运”为定位、“中国特色、浙江风采、杭州韵味、精彩纷呈”为目标,秉持“绿色、智能、节俭、文明”的办会理念,让亚运浪潮“席卷”世界舞台。国逢大事必以重器铭记,亚运
张同禄大师绝响之作品鉴会在收藏天下艺术馆举行
2023年1月15日,翰墨缘纪念荣宝斋350周年活动在北京正式开幕。荣宝斋邀约范曾先生,在其从艺四十年以来的作品中遴选部分精品力作,荟萃一堂,再度为展。
